Vyrežte uhlové profily pomocou píly na kov podľa výkresu.
Ako postaviť vonkajšiu kuchyňu
Ak sú vaši hostia na večierku naozaj hladní, môžete im teraz ponúknuť viacchodové menu. V hre BUILDIFY's Barney's Summer Kitchen ste šéfkuchárom vy.

Na výrobu kuchynskej dosky budete potrebovať
Rozmery:
- Veľká betónová doska 40x650x1200 mm
- Malá betónová doska 40x600x650 mm

Skrátenie U profilov
Na rovný povrch položte veľkú penovú dosku vystrihnutú podľa veľkosti – hrubou stranou nadol. Predvŕtajte vyrezané šikmé profily približne každých 100 mm (pozri náčrt), zarovnajte ich rovnou stranou nahor s okrajmi dosky a priskrutkujte ich na miesto celkovo 22 skrutkami (4,5x20 mm).
Rovnakým spôsobom vytvorte formu na malú betónovú dosku. Potom každú formu presne vyrovnajte v oboch osiach pomocou vodováhy tak, aby boli betónové dosky rovnomerne hrubé.
Z tvrdej penovej dosky vyrežte kruh na výrezy pre drez a kuchynskú batériu v betónovej doske – všimnite si priemer drezu a batérie. Zarovnajte okrúhle dosky zrkadlovou stranou nahor na požadovaných miestach, pretože dosky budú neskôr umiestnené na drezovej skrinke dnom nahor.
Potreba vody pre veľkú formu: 14 l, pre malú formu: približne 8 l. Do 90 l vedra na maltu nasypte piesok a betón v uvedených množstvách. Pri pomalom chode miešačky pridávajte po malých dávkach vodu a vločky sklených vlákien, kým sa po 10 až 15 minútach nevytvorí krémová hmota. Teraz vmiešajte zmäkčovadlo podľa pokynov na obale a hotovú zmes ihneď nalejte do formy. Potom povrch opatrne vyhlaďte škrabkou.
Približne po 6 dňoch schnutia profily opatrne odstráňte. Na inom pracovnom stole vytvorte vetraciu mriežku, položte na ňu dosky a nechajte ich úplne vytvrdnúť. Potom pomocou brúsky odstráňte prípadné otrepy na okrajoch. Cement potrebuje najmenej 28 dní, aby dosiahol plnú pevnosť v tlaku.
Bezpečnosť pri práci s betónom
Mokrý betón reaguje silne alkalicky, takže kontakt s pokožkou môže spôsobiť popáleniny, zápaly a alergie. Pri práci s betónom dodržiavajte všetky bezpečnostné pokyny výrobcu, noste pracovný odev s dlhými rukávmi, rukavice, ochranu očí a bezpečnostnú obuv. Ak prídete do kontaktu s betónom, umyte sa veľkým množstvom vody a prezlečte sa. Dávajte pozor na nekompatibilitu s ochrannými pomôckami alebo štruktúrou povrchu. Po stvrdnutí betónu už nehrozí žiadne riziko.
Na výrobu drezovej skrinky budete potrebovať
Budete potrebovať narezať (18 mm):
- Zadná doska: 1 kus à 1134x767 mm
- Základná doska: 1 kus à 1134x583 mm
- Základné koľajnice: 2 kusy à 447x100 mm (hĺbka)
- Základná lišta: 2 kusy à 1170x100 mm (šírka)
- Deliaca stena: 1 kus à 565x749 mm
- Bočné panely: 2 kusy à 583x785 mm
- Priečne vzpery: 2 kusy à 1134x100 mm
- Dvere: 1 kus à 537x777 mm
- Polička: 1 kus à 603x565 mm
- Dosky predvŕtajte a zahĺbte tak, aby ich hladké strany neskôr tvorili vnútro skrinky a štruktúrovaný povrch smeroval von.
Zoznam narezaných lamiel na obklad (vrstvené dyhové rezivo 24x40x2400 mm):
- dlhé: 2 kusy à 40x1770 mm
- krátke: 4 kusy à 40x535 mm

Prevŕtanie dosiek
Všetky dosky predvŕtajte podľa nasledujúcich náčrtov vŕtania pomocou „predvŕtania so záhlbníkom“.
TIP
Na vŕtanie sa odporúča „záhlbný vrták“. Tým sa na hornom konci vyvŕtanej diery vytvorí kužeľ, ktorý poskytne priestor pre hlavu skrutky. Hlava skrutky nebude vyčnievať a vy sa vyhnete prasklinám v dreve.
Tieto otvory sa neskôr použijú na priskrutkovanie priečnych vzpier k zadnej stene.

Chcete chladničku neskôr umiestniť na policu? Potom sa odporúča vyrezať na ľavej strane zadnej steny vetrací priestor s rozmermi približne 250x350 mm.
(Pre presné umiestnenie vetracieho priestoru si všimnite aj rozmery chladničky).

Tieto otvory sa neskôr použijú na priskrutkovanie základnej dosky k zadnej stene.

Tieto otvory sa neskôr použijú na priskrutkovanie podstavca, na ktorom bude stáť skrinka s umývadlom.

Tieto vyvŕtané otvory sa neskôr použijú na priskrutkovanie tejto medzisteny k polici.

Tieto otvory sa neskôr použijú na priskrutkovanie ľavej bočnej steny k základovej doske, zadnej stene a priečnym vzperám.

Tieto vyvŕtané otvory sa neskôr použijú na priskrutkovanie tejto pravej bočnej steny k spodnému panelu, zadnému panelu a priečnym vzperám. Predvŕtanú ľavú bočnú stenu môžete použiť ako šablónu na vŕtanie v opačnom smere(!): Vŕtajte otvory bez zahĺbenia a potom ich zahĺbte na zadnej strane (neskôr na vonkajšej strane).

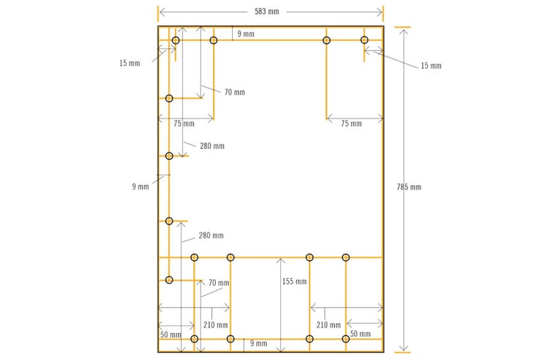
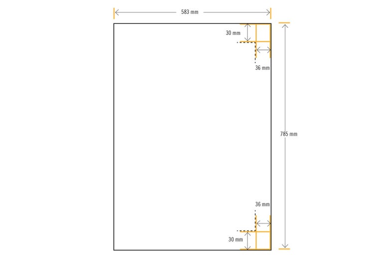
Na vnútornej strane pravej bočnej steny vyznačte ceruzkou čiary (prerušované čiary) podľa náčrtu. Tieto čiary budete neskôr potrebovať na montáž závesov dverí.

Tieto vyvŕtané otvory sa neskôr použijú na priskrutkovanie priečnych vzpier k dvom bočným stenám.

Hrany všetkých dosiek brúste tak dlho, kým nie sú všetky drsné povrchy hladké a nehrozí nebezpečenstvo vzniku triesky alebo úlomkov.
Umiestnite zadnú stenu do jednej roviny s vonkajšou a zadnou stranou základnej dosky, zarovnajte ju medzi bočné steny v pravom uhle a priskrutkujte ju na miesto celkovo 23 skrutkami (4,5x40 mm) podľa výkresov vŕtania.
Vyrovnajte priečne vzpery na vonkajšej a hornej strane do roviny medzi bočnými stenami a priskrutkujte ich k bočným stenám po štyroch skrutkách (4,5x40 mm) a zadnú vzperu piatimi skrutkami (4,5x40 mm) k zadnej stene.
Vložte priečku a priskrutkujte ju k priečnym vzperám dvoma skrutkami (4,5x40 mm) zhora a k spodnému panelu štyrmi skrutkami (4,5x40 mm) zdola. Potom priskrutkujte poličku k ľavému bočnému panelu a priečke vždy štyrmi skrutkami (4,5x40 mm).
Vyrovnajte základné dosky v pravom uhle s uhlom a priskrutkujte ich k sebe celkovo ôsmimi skrutkami (4,5x40 mm) podľa výkresov vŕtania.
Otočte skrinku a umiestnite základňu do stredu a do jednej roviny s bočnými stenami. Zarovnajte dve konzoly (40x40x40 mm) na vnútornú stranu každej krátkej strany vo vzdialenosti 40 mm od dlhých strán. Priskrutkujte konzoly k základnej doske a podstavcu pomocou 4 skrutiek (3,5x16 mm) každú. Ďalšie dve konzoly priskrutkujte štyrmi skrutkami (3,5x16 mm) do stredu dlhých soklových líšt na základovej doske a sokli.
Priskrutkujte štyri nábytkové nohy vo vzdialenosti 50 mm k dlhým stranám pomocou štyroch skrutiek (3,5x16 mm), každú priamo pred držiakmi základnej dosky.
Podľa náčrtu nakreslite dve značky pre stredový bod Forstnerovho vrtáka (40 mm) a vŕtajte 15 mm hlboko. Potom závesy priskrutkujte presne v pravom uhle k dlhšej strane.
Závesy priskrutkujte k pravej bočnej stene podľa nákresu bočnej steny (vo vnútri): horná hrana horného závesu je proti čiare (30 mm k hornej hrane). Spodná hrana spodného závesu je proti čiare (30 mm k spodnej hrane). Skrutky sú umiestnené na zvislej čiare (36 mm do strany). Potom pripevnite push-to-open podľa pokynov výrobcu na vnútornú stranu priečky pomocou dodaného montážneho materiálu.
Lišty vyrovnajte v pravom uhle podľa náčrtu pomocou štvorhranu a každý spoj priskrutkujte dvoma skrutkami (4,5x50 mm) bez predvŕtania.
Označte šesť otvorov v strede lamiel, ako je znázornené na zadnej strane dosky.
TIP
V závislosti od použitého spôsobu pripojenia vody vyvŕtajte otvor pre odtokovú armatúru na vhodnom mieste na zadnej alebo pravej vonkajšej strane drezovej skrinky pomocou zásuvky.
Na výrobu kuchynskej skrinky budete potrebovať
Zoznam požadovaných dosiek (18 mm):
- Zadná doska: 1 kus à 564x767 mm
- Základná doska: 1 kus à 564x583 mm
- Základné lišty: 2 kusy à 447x100 mm (hĺbka)
- Základné dosky: 2 kusy à 600x100 mm (šírka)
- Bočné panely: 2 kusy à 583x785 mm
- Priečne vzpery: 2 kusy à 564x100 mm
- Dvere: 1 kus à 588x777 mm
- Police: 1 kus à 564x565 mm
- Dosky predvŕtajte a zahĺbte tak, aby ich hladké strany neskôr tvorili vnútro skrinky a štruktúrovaný povrch smeroval von.

Všetky dosky predvŕtajte podľa nasledujúcich náčrtov vŕtania.
Neskôr pomocou týchto otvorov priskrutkujete zadnú priečnu výstuhu k tejto zadnej stene. (Pozri tiež obrázok na začiatku tohto návodu na použitie).

Tieto otvory sa neskôr použijú na priskrutkovanie tejto základnej dosky k zadnej stene.

Tieto otvory sa neskôr použijú na priskrutkovanie podstavca, na ktorom bude kuchynská skrinka stáť.

Tieto dve priečne vzpery sú neskôr priskrutkované k dvom bočným stenám a prídavná zadná vzpera k zadnej stene.

Tieto otvory sa neskôr použijú na priskrutkovanie telesa drezovej skrinky.

Predvŕtaný ľavý bočný panel možno použiť ako šablónu na spätné vŕtanie: na tento účel je potrebné vyvŕtať otvory bez zahĺbenia a potom ich zahĺbiť na opačnej strane (neskôr na vonkajšej strane).

Na vnútornej strane pravej bočnej steny vyznačte ceruzkou čiary (prerušované čiary) podľa náčrtu. Tieto čiary budete neskôr potrebovať na montáž závesov dverí.



Okraje všetkých dosiek brúste, kým nie sú všetky nerovnosti hladké.
Umiestnite zadnú stenu do jednej roviny s vonkajšou a zadnou stranou základnej dosky, zarovnajte ju medzi bočné steny a priskrutkujte ju k bočným stenám a základnej doske celkovo 23 skrutkami (4,5x40 mm).
Vyrovnajte priečne vzpery na vonkajšej a hornej strane do roviny medzi bočnými stenami a priskrutkujte ich k bočným stenám po štyroch skrutkách (4,5x40 mm) a zadnú vzperu priskrutkujte k zadnej stene štyrmi skrutkami (4,5x40 mm).
Vložte policu a priskrutkujte ju k skrinke štyrmi skrutkami na každej strane (4,5x40 mm) podľa nákresu vŕtania bočného panelu.
Vyrovnajte základné dosky v pravom uhle s uholníkom stolára a priskrutkujte ich k sebe celkovo ôsmimi skrutkami (4,5x40 mm) podľa výkresov vŕtania.
Otočte skrinku a umiestnite základňu do stredu a do jednej roviny s bočnými stenami. Zarovnajte dva závesy (40x40x40 mm) na vnútornej strane každej vonkajšej strany vo vzdialenosti 40 mm vpredu a vzadu. Závesy priskrutkujte k základnej doske a podstavcu vždy štyrmi skrutkami (3,5x16 mm).
Priskrutkujte štyri nábytkové nohy vo vzdialenosti 50 mm od seba vpredu alebo vzadu štyrmi skrutkami (3,5x16 mm), každú priamo pred závesmi na základnej doske.
Podľa náčrtu nakreslite dve značky pre stredový bod Forstnerovho vrtáka (40 mm) a vŕtajte 15 mm hlboko. Potom závesy priskrutkujte k sebe.
Na zostavenie všetkých častí vonkajšej kuchyne budete potrebovať
Zoznam prispôsobených dielov drezovej skrinky do vonkajšej
- Bočný panel vpravo: 12 kusov à 583 mm
- Zadný panel: 12 kusov à 1170 mm
- Dvierka: 12 kusov à 537 mm
- Kryt na vodu: 7 kusov à 1770 mm
- Informácie: Kryt na vodu neskôr spája drezovú skrinku (časť 2) s kuchynskou linkou (časť 3).
Zoznam koľajničiek:
- Zadná doska: 12 kusov à 600 mm
- Dvierka: 12 kusov à 588 mm
Zoznam koľajničiek pre grilovaciu skrinku:
- Ľavý bočný panel: 10 kusov à 583 mm
- Zadný panel: 10 kusov à 1008 mm
- Pravé dvere: 10 kusov à 493 mm
- Ľavé dvere: 10 kusov à 493 mm
Predvŕtajte každý kus spredu podľa náčrtu. Upozorňujeme, že niektoré lišty sa musia pred predvŕtaním prispôsobiť výklenku pre vodovodnú prípojku.


Aby lišty vyzerali dobre, musia byť na všetkých kuchynských skriniach umiestnené v rovnakej výške. Preto sa odporúča zostaviť všetky kuchynské diely na rovnej ploche a najprv na všetky diely nasadiť spodný rad koľajničiek v jednej rovine, potom druhý rad na všetky diely atď.
Pripevnite koľajnice k bočným stranám (ako je znázornené v zoznamoch rezov) pomocou jednej skrutky (3,5x30 mm) na každom konci, ako je znázornené na obrázku. Prvú lištu pripevnite do roviny. Vzdialenosť medzi lištami zodpovedá dvom šírkam skladacieho pravítka. Konce líšt nájdete na nasledujúcom náčrte.

Naneste silikón na okraje zadných panelov a bočných panelov dvoch vysokých skriniek, potom vyrovnajte dosku hladkou stranou nahor a zo všetkých strán do jednej roviny.
Naneste silikón na okraj drezu a vložte drez. Vložte kuchynskú batériu a pripojte drezovú odtokovú armatúru.
Naskrutkujte prípojku kuchynského kohútika zo spodnej strany a pripojte k nej záhradnú hadicu na prívod vody. POZNÁMKA: V závislosti od materiálu prípojky (napr. záhradná hadica) nemusí byť voda z vodovodného kohútika pitná.
Umiestnite ochranu proti striekajúcej vode do jednej roviny s hornými časťami skriniek, ktoré sú pritlačené k sebe (skrinka drezu a kuchynská skrinka) ...
... a priskrutkujte ich k zadnej stene šiestimi skrutkami (4,5x50 mm).
Bezpečnosť na prvom mieste
Tieto pokyny boli pripravené s maximálnou starostlivosťou, ale môžu ukázať len jeden z možných postupov. Preto realisticky zhodnoťte svoje vlastné schopnosti a v prípade pochybností vždy vyhľadajte odbornú radu.
Spoločnosť HORNBACH nezodpovedá za nesprávne použitie materiálov a nástrojov ani za nesprávnu montáž.
Žiadny z kusov nábytku sa nesmie používať na lezenie alebo gymnastiku. Aby ste predišli nehodám spôsobeným pádom, upozornite na toto riziko najmä deti.
- Počas všetkých pracovných krokov používajte vhodné ochranné pomôcky.
- Pred montážou nábytku obrúste povrchy, aby ste predišli poraneniam (napr. trieskami).
- Všetky hrany by mali byť ideálne opracované brúskou (brúska s minimálnym polomerom 3 mm). Ak brúska nie je k dispozícii, hrany by sa mali obrúsiť ručne s minimálnym polomerom 2 mm.




























